Помещение №1682

Россия, Санкт-Петербург, 4-й Предпортовый проезд, 5 Л Посмотреть на карте

1682
1682
1682
1682
1682
1682
1682, планировка
Помещение №1682
Пищевое производство, Промышленное производство, Склад, Офис
Сумма в месяц
1 597 900 ₽/мес
Арендная ставка
950 ₽/м2/мес
Площадь
1680 м2
Этаж
3
Включено
Отопление
НДС
Вода
Да
Отапливаемое
Да
Электричество (кВт)
300
Канализация
Да
Лифт (грузо-подъемность в тоннах)
5
Кол-во ворот
2
Полы
Обеспыленный пол
Бытовые помещения
Да
С/У
Да
Нагрузка на пол (тонн/м2)
2
Интернет/Телефония
Да
Навес
Да
В наличии
Вода
Да
Отапливаемое
Да
Электричество (кВт)
300
Канализация
Да
Лифт (грузо-подъемность в тоннах)
5
Кол-во ворот
2
Полы
Обеспыленный пол
Бытовые помещения
Да
С/У
Да
Нагрузка на пол (тонн/м2)
2
Интернет/Телефония
Да
Навес
Да
В наличии

Нужна помощь в подборе?

Оставьте заявку и мы свяжемся с вами

Нажимая кнопку, вы соглашаетесь с  Политикой конфиденциальности

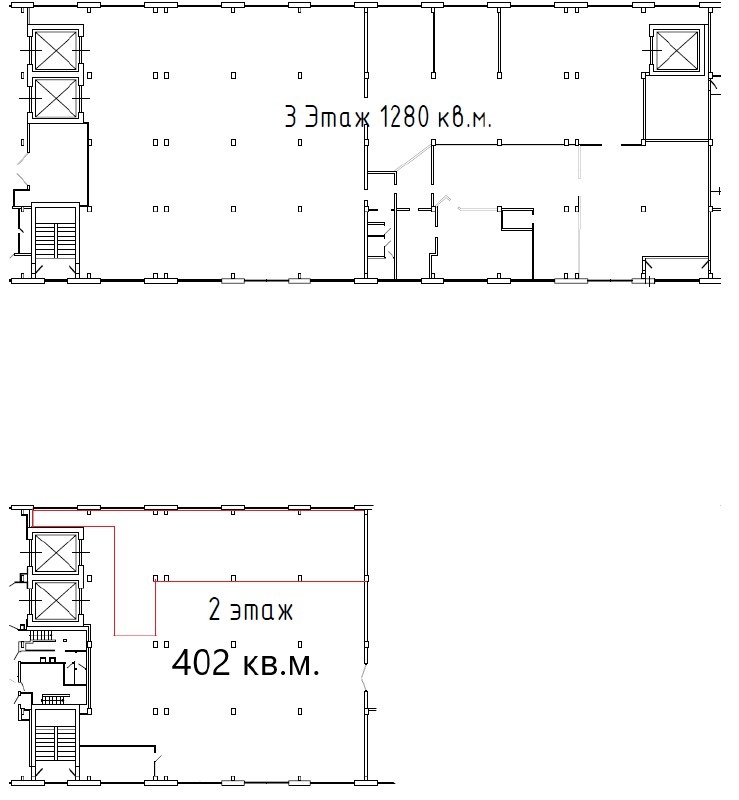
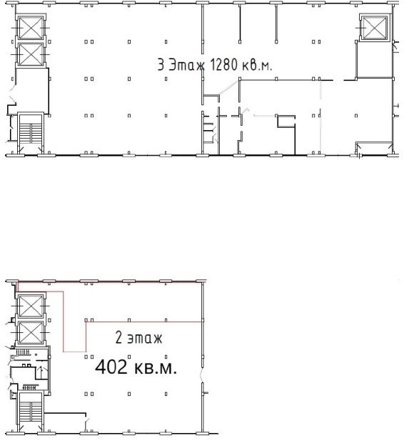
Планировка
Планировка 1682
Описание помещения
Предлагаем в аренду от собственника помещение площадью 1884 м², идеально подходящее для пищевого или "чистого" производства.

Основные преимущества и характеристики:
 
- 1278 м² на 3 этаже и  604 м² на 2 этаже
- Цена включает НДС и отопление 
- ГАЗИФИЦИРОВАНО — можно использовать в производственных целях  
- Высота потолков — 4,5 м (рабочая высота)  
- Офисный блок, санузел, переговорная комнату и кухня
- Ровный обеспыленный пол, нагрузка — 2 т/м²  
- Грузовой лифт грузоподъемностью 5 тонн, габариты — 4м х 2,5м х 2,2м  
- Водоснабжение, канализация, газ, отопление — все подведено
- Водоснабжение - до 30 куб.м/сутки 
- Электроснабжение — 500 кВт, достаточно для любой производственной нагрузки  
- Интернет, телефония — подключены  
- Асфальтированная территория  
- Две раздельные погрузочные зоны для разделения потоков  
- Парковка и площадка для маневрирования большегрузного транспорта  
- Бесплатный въезд и выезд на территорию  
- Ворота — подъемно-секционные, обеспечивают удобный доступ  
- Круглосуточная охрана, видеонаблюдение  
- Освещение, отопление, ХВС, водоотведение, пожарная сигнализация — все предусмотрено  
- Возможность заключения долгосрочного договора аренды  
- Предоставляем юридический адрес для регистрации  
- Также есть возможность установки или аренды рефконтейнера на территории

Звоните прямо сейчас!  
Обсудим условия и подготовим договор.




Возможно, вы искали: фулфилмент, распределительный центр, логистический, кросс-докинг, интернет-магазин (хранение и комплектация заказов), оптовый склад, склад маркетплейса, швейное производство, текстильный цех, фасовка и упаковка продукции, пищевое производство, кондитерский цех, производство полуфабрикатов, сборка и комплектация изделий, контрактное производство, мелкосерийное производство, сборочный цех, производство мебели, столярный цех, металлообработка лёгкая, производство пластиковых изделий, печатное производство, типография, рекламно-производственный цех, склад стройматериалов, склад запчастей, сервисный центр, ремонт и обслуживание оборудования, dark store, склад для HoReCa, склад фармацевтической продукции , архив, мастерская, техническая база, пункт выдачи заказов с зоной хранения

Смотреть все
Как добраться